Дровяной камин EdilKamin GIADA LX с топкой CRISTAL 76 N
* Изображение представленного на сайте товара носит ознакомительный характер и может незначительно отличаться от оригинала.
** Предложение не является публичной офертой.
- Описание
- Характеристики
- Отзывы0
- Доставка
- Оплата
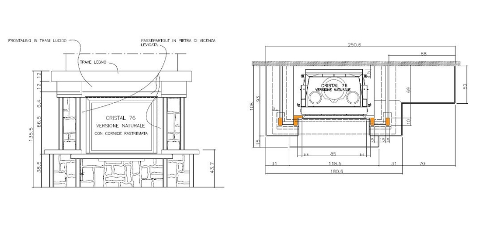
Готовый камин EdilKamin GIADA LX с топкой CRISTAL 76 N - это пристенный камин с облицовкой из натурального камня и банкеткой слева. Основной материал - рваный мрамор Vicentino. Материал полки - полированный мрамор Trani. Естественная конвекция (N). Компактная каминная топка, корпус топки металлический, футеровка очага из огнеупорного керамического материала ECOKERAM®. Мощность: 12 кВт.
Горизонтальная модель Cristal 76 способна отопить сразу несколько помещений средней величины, равномерно поддерживая комфортную температуру в каждом из них. Характеризуется чистым стеклом даже после нескольких дней использования, низким расходом топлива и высоким КПД. Циркуляция горячего воздуха осуществляется за счет натуральной конвекции или при помощи принудительной вентиляции (в версии с таковой, для чего также предлагается набор разводки горячего воздуха в смежные помещения состоящий из 2 отрезков гибкой трубы).
Топка состоит из корпуса, выполненного из высококачественного стального листа, герметически сваренного, снабженного регулируемыми ножками, внутреннего очага из ECOKERAM и вогнутого полотна горения для сбора пепла. Топка комплектуется внешним кожухом, что создает зазор для циркуляции теплого воздуха. Горячий воздух может быть направлен в соседние помещения по трубопроводам. Приток воздуха для горения разработан особенно тщательно, чтобы обеспечить оптимальное горение, спокойное пламя и сохранить стекло очень чистым.
Преимущества модели:
- Облицовка из натурального камня.
- Банкетка справа.
- Выход дымовых газов верхний.
- Система принудительной вентиляции. Все дровяные печи Edilkamin оснащены системой принудительной вентиляции. Для максимального увеличения эффективности отопления, Edilkamin разработал систему вентиляторов, оптимизирующих сопротивление печи и способствующих увеличению теплопроизводительности.
- Съемные ручки для открывания дверцы и створки.
- Воздух для горения. Топка может монтироваться только в местах, где есть достаточный приток воздуха для горения, и должна работать в закрытом состоянии.
- Клапан-бабочка. Приток воздуха регулируется клапаном-бабочкой. Клапан-бабочка поставляется как дополнительный аксессуар вместе с гибким шлангом и крепежными скобками.
- Варианты исполнения: воздух для отопления - натуральная конвекция, принудительная вентиляция.
- Подъемный механизм (гильотина) + боковое открытие.
| Способ установки | Фронтальный |
| Материал топки | Сталь |
| Варочная плита (конфорка) | Нет |
| Материл дверки | Сталь |
| Корпус | Облицовка из камня |
| Вид камня | Мрамор |
| Производитель | EdilKamin |
| Страна производства | Италия |
| Ширина | 2646 мм |
| Глубина, мм | 1080 |
| Высота | 1486 мм |
| Диаметр | 250 мм |
| Выход дымохода | наверх |
| Глубина топки (макс. длина дров), мм | 500 |
| Тепловая мощность, кВт | 12 |
| Встроенный шибер | Нет |
| Футеровка | чугунные пластины |
| Тип дверцы | с панорамным стеклом |
| Отапливаемый объем, м3 | 300 |
Дровяной камин EdilKamin GIADA LX с топкой CRISTAL 76 N отзывы
Способы доставки по Нижнему Новгороду и области:
При покупке от 10000 рублей доставка товара с центрального склада до терминала транспортной компании бесплатная (оплачивается только межтерминальная перевозка), при покупке меньше 10000 - стоимость отправки 600 рублей. Стоимость межтерминальной перевозки рассчитывается и оплачивается дополнительно.
Мы работаем с транспортными компаниями:
- КИТ
- ПЭК
- Деловые линии
- Луч
- Энергия.
По Вашему желанию возможна отправка товара любой другой транспортной компанией.
Возможна доставка товара до Вашего адреса по всей области - в этом случае к стоимости межтерминальной перевозки добавится стоимость доставки до адреса.
Оплата в Нижнем Новгороде и области принимается следующими способами:
- Онлайн оплата — дебетовыми и кредитными картами на сайте.
- Оплата на карту Сбербанка — применяется для физических лиц при дистанционной оплате.
- Оплата по безналичному расчету — применяется для физических и юридических лиц. После зачисления денежных средств на расчетный счет, товар и полный пакет документов будут доставлены Вам согласованным способом в оговоренные сроки. Работаем с НДС!
- Покупка товаров в кредит — нажмите кнопку "Купить в кредит" в карточке товара и оформите заявку на кредит. Подробности у менеджеров.
Покупатели, которые приобрели Дровяной камин EdilKamin GIADA LX с топкой CRISTAL 76 N, также купили
Рекомендуем посмотреть
Купить дровяной камин EdilKamin GIADA LX с топкой CRISTAL 76 N в Нижнем Новгороде можно в интернет-магазине Печи96.ру. Товар относится к категории «готовые камины» и представлен в каталоге по актуальной цене — 676 100 руб., артикул — 1046963.
В карточке товара указаны характеристики, параметры, комплектация и информация по применению. При выборе рекомендуется учитывать назначение модели, особенности установки, размеры, конструкцию и совместимость.
Заказать дровяной камин EdilKamin GIADA LX с топкой CRISTAL 76 N можно онлайн с доставкой по Нижнему Новгороду и области. Для покупателей доступны оплата наличными, банковской картой, переводом на карту и безналичный расчет с НДС. Также возможна покупка в кредит.
Если вам нужна консультация по товару, цене, заказу, доставке или способам оплаты, свяжитесь с нами по телефону +7 (831) 282-11-01. Специалисты Печи96.ру помогут подобрать подходящий вариант и оформить заказ.




























