Керамическая печь-камин Thorma ATIKA Ceramic EXTRA белая
* Изображение представленного на сайте товара носит ознакомительный характер и может незначительно отличаться от оригинала.
** Предложение не является публичной офертой.
- Описание
- Характеристики
- Отзывы0
- Доставка
- Оплата
Дровяная печь ATIKA Ceramic PLUS имеет круглую, вытянутую форму. Облицовка выполнена из керамических квадратов. Благородный цвет керамической облицовки красиво гармонирует с черным цветом топочной камеры и дверцы. Дверца оснащена обзорным термостойким стеклом, открывающим удивительный вид огня. Керамическая облицовка поверхности печи безусловно выделяет эту модель в разряд современных и стильных дизайнерских печей. Внутренняя облицовка печи выполнена из огнеупорного вермикулита. Материал устойчив к высоким температурам и разрушительному воздействию продуктов горения. Через несколько лет, в случае постепенного прогорания, стенки можно заменить. В печи предусмотрена трехуровневая подача воздуха. Первичная и вторичная подача воздуха доступны для регулировки процессов горения, а третий канал подачи кислорода обеспечивает оптимальное горение огня. Печь-камин оснащена режимом «длительного горения». Респектабельный вид печи-камина украсит любой интерьер Вашего дома или квартиры и не займет много места благодаря вытянутой форме. КПД печи 84,2 %.
- Режим "длительного горения";
- Система "чистое стекло";
- Дожигание дымовых газов;
- Облицовка из керамики;
- Внутренняя часть из огнеупорного вермикулита;
- Подача воздуха на горение.
Каталог печей Thorma (Словакия)
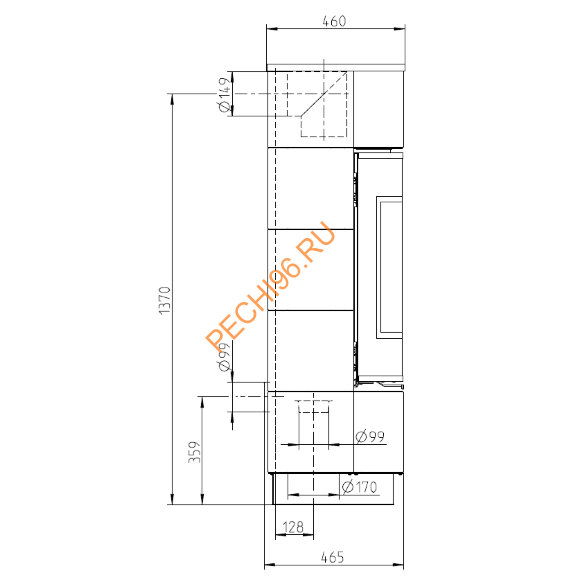
| Способ установки | Фронтальный |
| Материал топки | Сталь |
| Толщина стенок топки, мм | 4 |
| Корпус | Облицовка из керамики |
| Производитель | Thorma |
| Страна производства | Словакия |
| Ширина | 538 мм |
| Глубина, мм | 506 |
| Высота | 1468 мм |
| Масса | 160 кг |
| Диаметр | 150 мм |
| Выход дымохода | наверх, назад |
| Глубина топки (макс. длина дров), мм | 400 |
| Встроенный теплообменник | Нет |
| Тепловая мощность, кВт | 7.5 |
| Встроенный шибер | Нет |
| Футеровка | вермикулит |
| Отапливаемый объем, м3 | 180 |
| Тип дверцы | с панорамным стеклом |
Керамическая печь-камин Thorma ATIKA Ceramic EXTRA белая отзывы
Способы доставки по Нижнему Новгороду и области:
При покупке от 10000 рублей доставка товара с центрального склада до терминала транспортной компании бесплатная (оплачивается только межтерминальная перевозка), при покупке меньше 10000 - стоимость отправки 600 рублей. Стоимость межтерминальной перевозки рассчитывается и оплачивается дополнительно.
Мы работаем с транспортными компаниями:
- КИТ
- ПЭК
- Деловые линии
- Луч
- Энергия.
По Вашему желанию возможна отправка товара любой другой транспортной компанией.
Возможна доставка товара до Вашего адреса по всей области - в этом случае к стоимости межтерминальной перевозки добавится стоимость доставки до адреса.
Оплата в Нижнем Новгороде и области принимается следующими способами:
- Онлайн оплата — дебетовыми и кредитными картами на сайте.
- Оплата на карту Сбербанка — применяется для физических лиц при дистанционной оплате.
- Оплата по безналичному расчету — применяется для физических и юридических лиц. После зачисления денежных средств на расчетный счет, товар и полный пакет документов будут доставлены Вам согласованным способом в оговоренные сроки. Работаем с НДС!
- Покупка товаров в кредит — нажмите кнопку "Купить в кредит" в карточке товара и оформите заявку на кредит. Подробности у менеджеров.
Не забудьте приобрести
-
Цена: 43 060 ₽Цена: 19 590 ₽Цена: 12 830 ₽Цена: 42 290 ₽Цена: 4 400 ₽Цена: 31 440 ₽Цена: 16 400 ₽Цена: 36 630 ₽
-
Цена: 2 900 ₽Цена: 4 580 ₽Цена: 5 160 ₽
Категории: Печи для помещений объемом до 250 м3 Печи для дома Отопительные печи Камины Печи-камины Изразцовые (керамические) печи-камины
Покупатели, которые приобрели Керамическая печь-камин Thorma ATIKA Ceramic EXTRA белая, также купили
Рекомендуем посмотреть
Купить керамическая печь-камин Thorma ATIKA Ceramic EXTRA белая в Нижнем Новгороде можно в интернет-магазине Печи96.ру. Товар относится к категории «печи для помещений объемом до 250 м3» и представлен в каталоге по актуальной цене — 543 100 руб., артикул — 1010906.
В карточке товара указаны характеристики, параметры, комплектация и информация по применению. При выборе рекомендуется учитывать назначение модели, особенности установки, размеры, конструкцию и совместимость.
Заказать керамическая печь-камин Thorma ATIKA Ceramic EXTRA белая можно онлайн с доставкой по Нижнему Новгороду и области. Для покупателей доступны оплата наличными, банковской картой, переводом на карту и безналичный расчет с НДС. Также возможна покупка в кредит.
Если вам нужна консультация по товару, цене, заказу, доставке или способам оплаты, свяжитесь с нами по телефону +7 (831) 282-11-01. Специалисты Печи96.ру помогут подобрать подходящий вариант и оформить заказ.





























